22647 Margarita Dr, Los Angeles, CA 91364
Toggle Navigation
Images
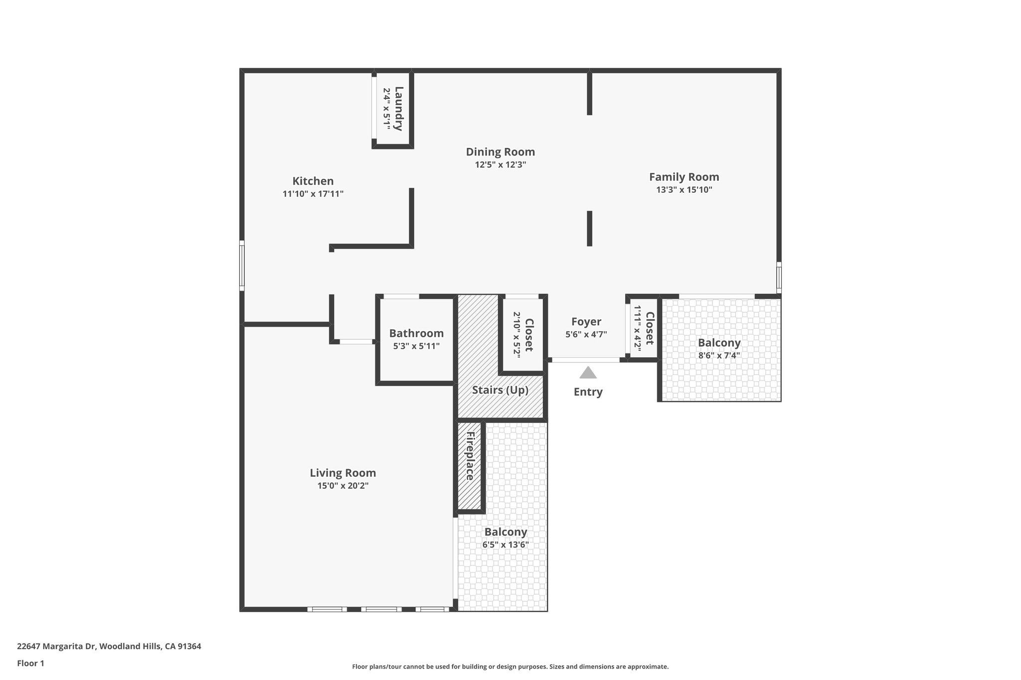
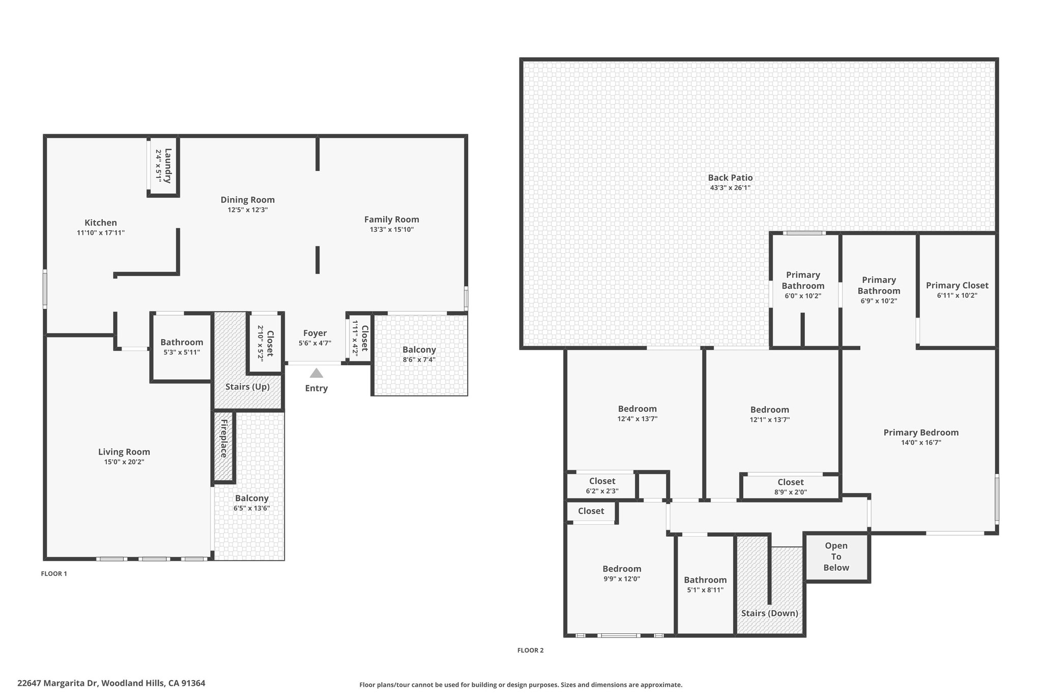
Floor Plans
3D Tour
Map
22647 Margarita Dr
Los Angeles, CA 91364
Scroll to Content
Images
Slideshow
Photo Grid
Hide
Previous
Next
Show more
Floor Plans
Slideshow
Photo Grid
Hide
Previous
Next
3D Tour